Startseite - Joachim Beisel
 
Startseite - Joachim Beisel
Hotel
Wohnen
Industrie
Städtebau
Konzeption
 
Team
Kontakt
Links

voriges Bild         Übersicht         nächstes Bild

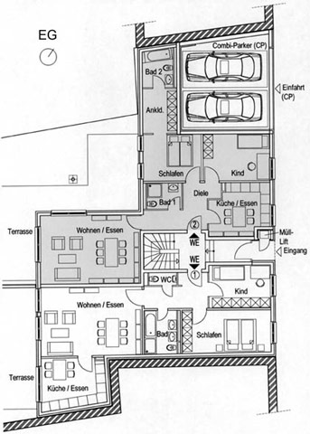
EG
 

Mehrfamilienhaus Robelstrasse
Grundriss Erdgeschoss mit den Wohneinheiten 1 und 2