Startseite - Joachim Beisel
 
Startseite - Joachim Beisel
Hotel
Wohnen
Industrie
Städtebau
Konzeption
 
Team
Kontakt
Links
 
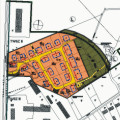
Bebauungsplan   Gestaltungsplan

  Perspektive Wohngebiet

Wohngebiet Am Mühlenberg, Zirkow, Rügen
Entwicklung eines attraktiven Wohngebietes auf einer ca. 3 ha großen
Ackerfläche im Landschaftsschutzgebiet. Durch eine ruhige Erschließung und die aufgelockert-gruppierte Bebauung mit 6 zweigeschossigen Doppelhaushälften und
20 freistehenden Einfamilienhäusern wird eine hohe Wohnqualität erreicht.